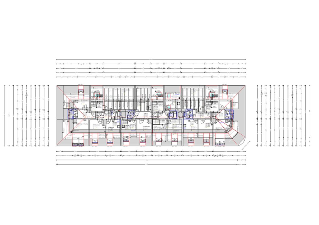
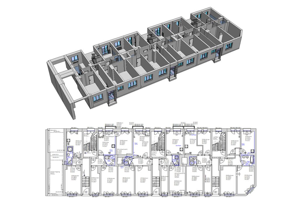
The project involves the construction of a residential building in Berlin, meticulously modeled using Allplan 3D to ensure precision and efficiency from design through execution. The building, with a gross area of 3156 square meters, is structured across seven levels including a basement, ground floor, three additional floors, and an attic, effectively maximizing the use of vertical space.
Designed to cater to a variety of residents, the building comprises 24 apartments. This setup promises a community-like environment with ample living space, catering to different family sizes and lifestyles. The architectural design, facilitated by advanced 3D modeling, ensures that each apartment is laid out for optimal sunlight exposure and views, enhancing the living experience for all residents. This project not only aims to provide comfortable and aesthetically pleasing living spaces but also contributes to the urban development of its Berlin locale.






